
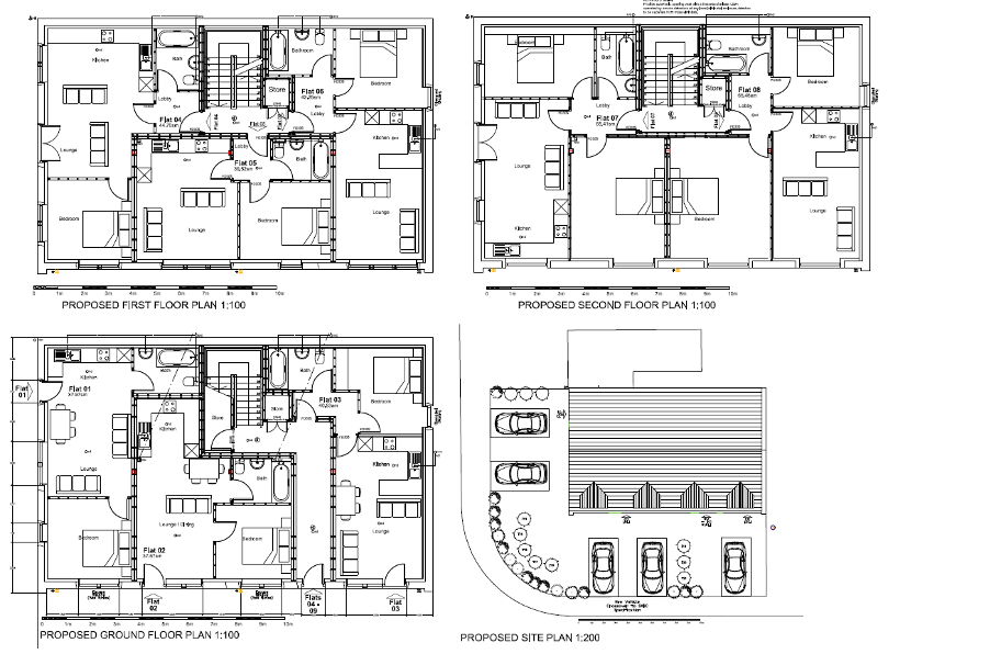
- Devonshire Road, Southport – 8 Flats ( 6 x 1 bed , 2 x 2 beds)
Investment Outline
- Freehold block, Undergoing conversion from commercial to residential
- Telecoms mast on property generating
- On site parking
(Off Plan Refurbishment Development)
Purchase Price: £625,000
Tenure: Freehold
Additional Income:
Telecoms Mast, currently on a 10 year lease with 8 years
Annual Rental for Telecoms Mast: £7,000
Location:
This is a prime, upmarket location, these apartments are well suited to the working professional. The property is situated in close proximity to Southport Golf Course, Meols Cop Train Station and is a very short commute to Southport Town Centre.
Purchase Process:
Reservation Fee per unit: £2,000
Exchange Monies: 15% of purchase price held as stakeholder
Balance payable on completion
Completion Date:
Targeted Completion: Q4 2020